(APS)
Etude sommaire dans le but de définir les axes majeurs de la conception, anticiper les sujets complexes, et définir la viabilité du projet.
Etablissement de la descente de charge et du prédimensionnement des éléments de structures.
Production de plans d’avant-projet sommaire.
(APD-DCE-ACT)
Etude complète de conception pour optimiser l’impact financier du projet.
Elaboration du Dossier de Consultation des Entreprise, des DPGF, CCTP, plans, et estimation financière du coût de travaux pour le lot Gros Œuvre.
Utilisation d’une maquette numérique 3D et Intégration BIM.
Analyse des offres des entreprises et assistance à l’attribution du marché Gros Œuvre.
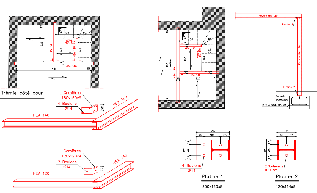
(EXE-DET)
Etude d’exécution détaillée.
Production de plans d’exécution de coffrage et de ferraillage.
Etablissement de la liste de fer
Organisation de réunions de chantiers, visites de chantier aux étapes clés.
(AOR)
Vérification des travaux réalisés et de leur conformité au cahier des charges.
Etablissement d’une liste de réserves.
• Visite du chantier
• Localisation des points de vigilance de pathologie
• Localisation de sondages éventuelles
• Rédaction d’un rapport technique avec préconisations
© Depuis 2006 KAREDESS - Création de sites internet à Mulhouse
